Опыт работы
3 года
Отзывов
34
О себе
- знаю как выгодно инвестировать в новостройку. - быстро и четко нахожу решение сложных задач при покупке и продаже недвижимости. -помогаю клиентам с не очень хорошей кредитной историей, одобрить ипотеку. -самое важное для меня честность и открытость
Специализация
Отзывы риэлтора
34 отзыва
Сортировать по:
Ксения
30.08.24
Очень хороший специалист,все сделала быстро ,грамотно!мы остались очень довольны ,спасибо огромное ❤️
Наталья
23.07.24
Спасибо Веронике! Все прошло хорошо! О чем бы ее не спросили,всегда получали ответ. Все время на связи.
Григорьева Мария
23.07.24
Спасибо большое Веронике за проделанную работу. Всё прошло на высшем уровне. Я вообще сначала думала что ничего не получится. Но Вероника такой человек она и прислушается и подберет нужный объект. Огромное спасибо🙏💕
Александра
17.06.24
Вероника,очень замечательный и опытный риелтор.У меня была очень сложная ситуация в покупке квартиры ,Вероника разрешила все вопросы и тем самым очень сильно мне помогла!Рекомендую
Активные объявления
14 объявлений
Участок, 10 сот.
Удмуртская Респ, г Ижевск, ул Пушкинская, д. 214
Выложено: 19.09.22
Комната, 15 м²
Удмуртская Респ, г Ижевск, гск Машиностроитель, ул Пушкинская, д. 214
Выложено: 19.09.22
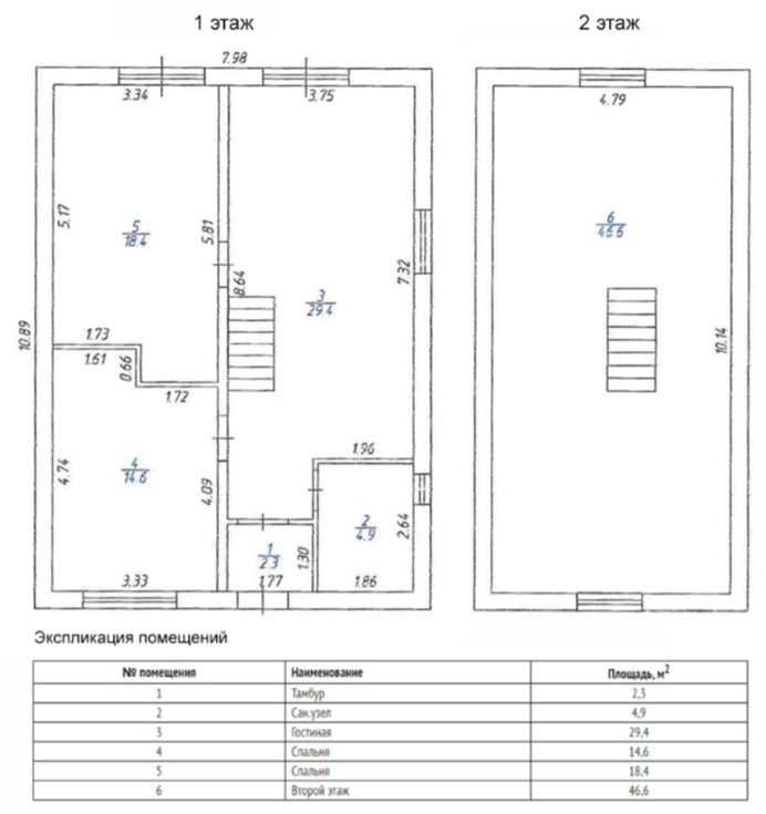
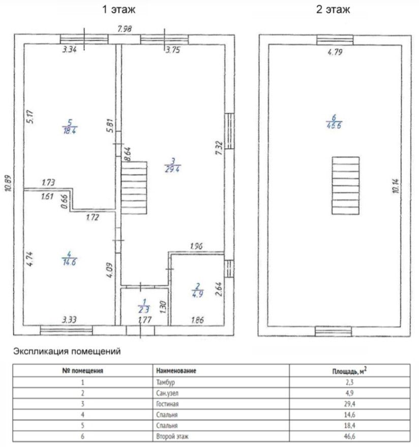
Дом 49.5 м², 3.8 сот.
Удмуртская Респ, г Ижевск, ул Ключевская, д. 22
Выложено: 19.09.22
Дом 42 м², 15 сот.
Удмуртская Респ, Завьяловский р-н, деревня Люкшудья
Выложено: 19.09.22
