2 - комн. квартира, 43.1 м²
Удмуртская Респ, г Ижевск, ул Городок Машиностроителей, д. 112
Стоимость жилья

Сорокина Светлана Валерьевна
304| 8585 отзывов
3 550 000₽
82 367₽/м²

Сорокина Светлана Валерьевна
304| 8585 отзывов
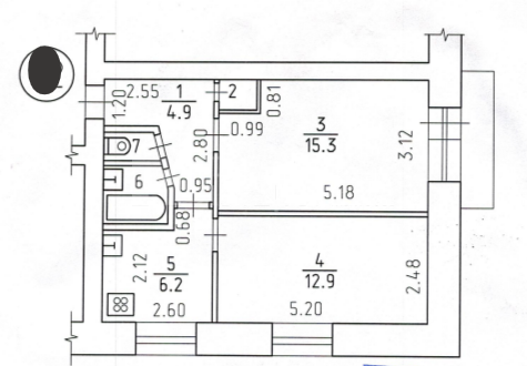
Общая информация
Площадь
43.1 м2
Жилая площадь
28.2 м2
Этаж
3 из 5
Кухня
6.2 м2
Описание
Продаётся светлая и тёплая 2-комнатная квартира в спокойном, тихом районе города. Идеальный вариант для комфортной жизни.
Плюсы квартиры:
- Ремонт: Натяжные потолки, частично остаётся мебель, кухонный гарнитур.
- Планировка: Раздельные комнаты.
- Особенности: Очень светлая и солнечная.
Плюсы расположения:
- Тишина и покой: Квартира находится вдали от шумных магистралей.
- Инфраструктура: Всё необходимое — в шаговой доступности.
- Транспорт: Всего 5 минут пешком до остановок общественного транспорта.
- Магазины: Рядом магазин "Магнит".
- ТРЦ "Матрица": В 5 минутах ходьбы. В вашем распоряжении кинотеатр, боулинг, фитнес-клуб "Фитнес-Хаус", гипермаркет "Лента" и множество других магазинов.
- В доме есть вайлдберриз, озон, Яндекс маркет.
Дополнительная информация:
- Собственность: 2 взрослых собственника, без детских долей.
- Торг: Возможен разумный торг для реальных покупателей.
Свяжитесь со мной, чтобы назначить просмотр!
Арт. 125845779
О квартире
Количество комнат 2
Этаж 3 из 5
Балкон / Лоджия есть
О здании
Номер дома 112
Год постройки 1978
Расположение
Удмуртская Респ, г Ижевск, ул Городок Машиностроителей, д. 112